% ARABICA
INTERIOR DESIGN
In the heart of Budapest, % Arabica’s first Hungarian store captures the brand’s philosophy of simplicity, authenticity, and appreciation for the essentials. Designed by French studio Ciguë, the stripped-back space balances raw historic textures with clean, modern precision, creating a refined yet down-to-earth atmosphere.
Set within a historic 1844 building by József Hild, the store preserves the vaulted brick architecture, celebrating its raw beauty. Custom elements in Zsolnay porcelain —a material deeply woven into Hungarian culture— anchor the space, with smooth, reflective surfaces contrasting the rugged brickwork. These seating installations and counters evoke the warmth of Budapest’s iconic thermal baths, blending local tradition with a global sensibility.
URBA played a key role in planning process. Through careful relationship management with local authorities, URBA brought Ciguë’s subtle yet bold vision to life. The result is a luminous, open space where local heritage and minimalist elegance blend effortlessly, perfectly capturing % Arabica’s grounded and universal spirit.
% ARABICA

Architect: Ciguë, URBA
Project team: Zsófia Kardos, Márton Lengyel, Liza Natasa Rakusz
Client:% Arabica
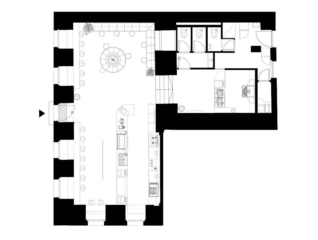
Area: 117 sqm
Year: 2025
Location: Budapest, Király Street
Photography: Horvath Miklos
Text: Lidia Vajda



In the heart of Budapest, % Arabica’s first Hungarian store captures the brand’s philosophy of simplicity, authenticity, and appreciation for the essentials. Designed by French studio Ciguë, the stripped-back space balances raw historic textures with clean, modern precision, creating a refined yet down-to-earth atmosphere.


Set within a historic 1844 building by József Hild, the store preserves the vaulted brick architecture, celebrating its raw beauty. Custom elements in Zsolnay porcelain —a material deeply woven into Hungarian culture— anchor the space, with smooth, reflective surfaces contrasting the rugged brickwork. These seating installations and counters evoke the warmth of Budapest’s iconic thermal baths, blending local tradition with a global sensibility.


URBA played a key role in planning process. Through careful relationship management with local authorities, URBA brought Ciguë’s subtle yet bold vision to life. The result is a luminous, open space where local heritage and minimalist elegance blend effortlessly, perfectly capturing % Arabica’s grounded and universal spirit.


INTERIOR DESIGN
ARCHITECTURE
PRODUCT DESIGN